Ter. residenziale in vendita

Cicagna, Via Serra
€ 8.000
1040 Mq 1040 Mq

Ter. residenziale in vendita

Cicagna, Via Serra

Descrizione annuncio

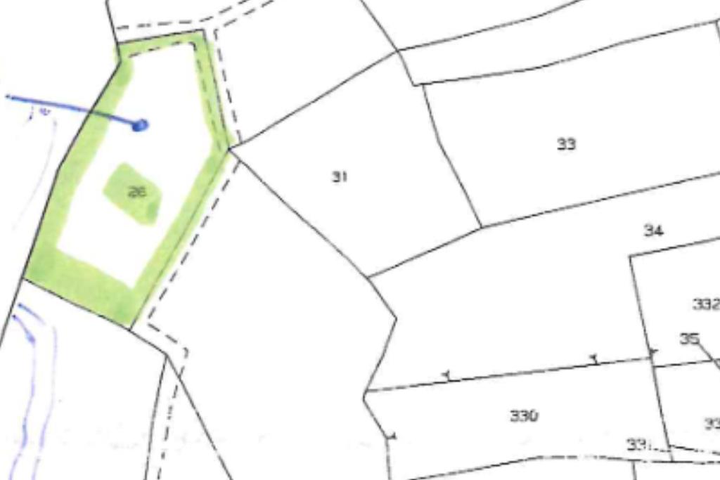
Serra di Cicagna - In zona comoda ai servizi proponiamo in vendita terreno in parte piantumato uliveto di 1040 metri su più livelli, con possibilità di creare una casa indipendente con una superficie edificabile di160 mq su due livelli con accesso carrabile.

Grazie all'ottima esposizione il terreno è illuminato per la gran parte della giornata.

Caratterizza la zona la presenza di supermercati, uffici postali, bar, tabaccherie, scuole, fermate autobus.

Mostra tutto

Nelle vicinanze

Trasporto pubblico Trasporto pubblico
Trasporto pubblico
670 m
Tribogna Capolinea
Tribogna Capolinea
1,3 Km
Ricariche auto elettriche Ricariche auto elettriche
Gattorna Commercio | EnelX
2,8 Km
Scuole Scuole
Scuola Primaria di Ferrada
850 m
Scuola dell'Infanzia di Ferrada
960 m
Scuola Primaria e Secondaria di 1°grado A.P Giannini
2,1 Km
Scuola dell'Infanzia di Cicagna
2,1 Km
Ospedali Ospedali
Ospedaletto
2,7 Km
Supermercati Supermercati
Supermarket
1,5 Km
Fransa
2,9 Km
Bar Bar
La Siesta
2,0 Km
Gò a gua Sécca
2,2 Km
Bar
2,5 Km
Alzati - Lazzaro
2,9 Km
Ristoranti Ristoranti
La Madia
2,3 Km
Murtà e Pestellu
2,7 Km
Osteria centrale da Baldo
2,8 Km
Mostra tutto

Caratteristiche

Rif.:
61049338
Piano:
Basso
Arredamento:
Assente
Condizionamento:
Assente
Ascensore:
No
Riscaldamento:
Assente
Mostra tutto
Prezzo Prezzo
€ 8.000
Rata mutuo Rata mutuo
€ 37 / mese
Spese annue Spese annue
€ 0
Proponi il tuo prezzoProponi il tuo prezzo

Classe Energetica

Questo immobile è esente da classe energetica
Anno di costruzione:
1900
Riscaldamento:
Assente

Ti interessa visionare l'immobile?

Fissa un appuntamento  Fissa un appuntamento

Richiedi informazioni

* Questi campi sono obbligatori

Calcola il tuo mutuo

Semplice e senza impegno
Anticipo

( % )
Mutuo

( % )

pochi semplici passi

inserisci i tuoi dati
Questionario completato
Grazie per aver richiesto un appuntamento senza impegno con un nostro Consulente del Credito e Assicurativo.

Hai inserito correttamente tutti i dati necessari e a breve riceverai una e-mail con un link da convalidare per inviare i tuoi dati.
Affiliato
Studio San Salvatore Srl
Corso Risorgimento, 214-216 16030 Cogorno (GE)

Il nostro staff


  • Mauro Pisanu
    Affiliato

  • Paola Pisanu
    Affiliata

  • Davide Vaccaro
    Responsabile

  • Sofia Bassi
    Coordinatrice

  • Serena Coppola
    Collaboratrice
Corso Risorgimento, 214-216 16030 Cogorno (GE)
Zona: San Salvatore - Cogorno - Carasco
Mostra su mappa
Orari: Dal Lunedì al Venerdì 9:00 - 12:30 e 15:00 - 19:30, Sabato 9:00 - 12:30 e 15:00 -19:00
Affiliato
Studio San Salvatore Srl
Corso Risorgimento, 214-216 16030 Cogorno (GE)

2025 Tecnocasa Franchising S.p.A. - P. IVA 08365160152 - Via Monte Bianco 60/A 20089 Rozzano (MI). Ogni agenzia ha un proprio titolare ed è autonoma. Privacy policy | Policy utilizzo | Cookie policy